打開微信掃一掃噸袋開袋站又稱噸包投料站、噸袋拆包機是為了方便客戶噸袋開袋、放料而設計的,通常使用在醫藥、食品、添加劑、化工、塑料、電磁等行業,適合于標準噸袋的卸料。
詳情咨詢:186-3909-0355
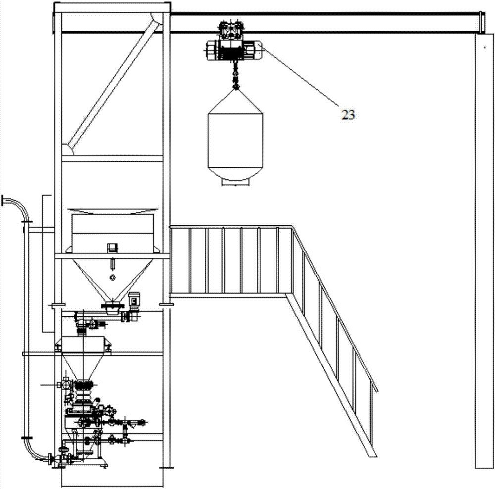
工作原理:
通過人工操作自動吊葫蘆將噸袋吊起,至大袋開袋站拍打裝置上方,人工拉出噸袋下料口,裝入氣動夾袋裝置內,按下夾袋按鈕,夾緊氣缸自動加緊噸袋下料口,人工解開噸袋口捆扎繩,開始自動放料。原料進入緩沖料罐內,通過拍打裝置的拍打,可以解除原料在噸袋內的積料和卡阻現象,使原料比較順利從噸袋落入到緩沖罐內。緩沖罐下配備有輸送螺桿,通過螺桿的計量輸送,可以達到客戶所需要的送料量,將原料輸送到客戶需要的罐體中(亦可在開袋站支架上安裝稱重模塊,去皮后,直接稱出重量)。
噸袋卸料投料站用于噸袋裝粉狀、顆粒狀物料拆包卸料作業。該設備由機架、提升裝置、隔膜閥、暫存料倉等組成;根據工藝特點和設備尺寸,可以采用吊機和叉車兩種不同的方式; 可配有雙軌道,用于兩只電動葫蘆安裝的場合中,提高拆袋效率;材質分為碳鋼和不銹鋼兩種;整套設備密封性好,操作簡便,提高了生產環境和生產效率。
【原料包裝】: 0.3~2t包裝袋 【應用領域】: 食品、醫藥、精細化工、添加劑、化工、塑料、染料、建材等.。 【適用物料】: 咖啡、奶粉、面粉、防霉劑、防腐劑、香精香料、味精、沖劑、葡萄糖、工原料、PVC粉末、ABS粉末等。
詳情咨詢:186-3909-0355











豫公網安備41072102000588號 |